
Ceturtdien, 25. aprīlī, Rīgas domes Pilsētas attīstības komitejā notika nekustamo īpašumu attīstītāja "Vastint Latvia" īpašuma "Ezerparks" teritorijas lokālplānojuma ierosinājumu publiskās apspriešanas sanāksme, kurā tika prezentēts izstrādātais teritorijas attīstības plāns.
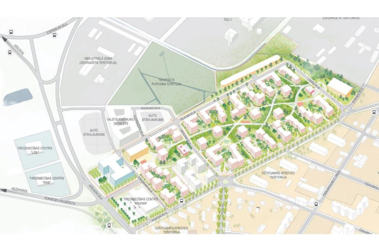
“Ezerparks” ir 19 hektāru plašs īpašums Čiekurkalnā, starp Rusova ielu, Ķīšezera ielu, Talejas ielu un Cirīša ielu. Attīstītājs “Vastint Latvia” trīs līdz četru gadu laikā plāno pirmo 500 dzīvokļu būvniecību no aptuveni kopumā 1 800 projektā paredzētajiem.
“Ezerparks” teritorijā paredzēts attīstīt mūsdienīgu daudzdzīvokļu dzīvojamo māju kvartālu un 33 400 kvadrātmetru plašu biroju ēku kompleksu, kā arī publiski pieejamu trīs hektāru parkveida teritoriju ar ērtu infrastruktūru un kvalitatīvu labiekārtojumu - veloceļiem, bērnu rotaļu un sporta laukumiem, piknika un atpūtas zonām.
“Projekta apbūves programmu plānots īstenot vairākās kārtās, ņemot vērā sociālekonomiskās situācijas attīstības tendences, taču orientējoši desmit gados. Projektā plānots, ka daudzdzīvokļu dzīvojamās mājās būs aptuveni 1 800 dzīvokļu, tādējādi kļūstot par jaunu mājvietu ap 4 000 iedzīvotāju,” norāda "Vastint Latvia" rīkotājdirektors Romāns Astahovs.
Starp daudzdzīvokļu ēkām plānots izveidot gājēju koridorus, kas būs brīvi no apbūves un netiks nožogoti, tādējādi šāda inovatīva pieeja kvartāla iekšējā parka zonas izveidei ar atsevišķi integrētiem apbūves apjomiem būs piemērs atvērtas, publiski pieejamas teritorijas pastāvēšanai mūsdienīgā pilsētvidē.
“Saskaņā ar Rīgas pilsētas ilgtermiņa attīstības stratēģiju īpašums “Ezerparks” atrodas Prioritāro attīstības teritoriju skaitā, tāpēc viens no šī projekta galvenajiem mērķiem ir padarīt Rīgas teritoriju pievilcīgāku un baudāmāku iedzīvotājiem,” skaidro Romāns Astahovs, piebilstot, ka publiskā parkveida teritorija ar apstādījumiem, mūsdienīgu iekārtojumu, pastaigu un aktīvās atpūtas iespējām, kas caurvīs attīstāmo teritoriju, būs projekta “Ezerparks” sirds un identitāte.
“Vastint Latvia” īpašumu iegādājās 2019. gadā un vairāk nekā divu gadu garumā, piesaistot profesionālu vietējo un starptautiska līmeņa speciālistu komandu, veica teritorijas izpēti, lai sagatavotu ilgtspējīgu attīstības koncepciju. Līdz šim lokālplānojums saņēmis astoņu no desmit institūciju atzinumus par daudzfunkcionāla dzīvojamā un darījumu kompleksa būvniecību.
Lokālplānojuma publiskā apspriešana norisināsies līdz šī gada 14.maijam, tāpēc iedzīvotāji ir aicināti iesniegt projekta priekšlikumus. Vairāk informācijas valsts vienotajā ģeoportālā: https://geolatvija.lv/geo/tapis#document_22312.
Paskaidrojuma raksts par lokālplānojumu “Ezerparks” pieejams: https://bit.ly/3Q7TKWO.
Teritorijas īpašnieks un lokālplānojuma ierosinātājs ir SIA “Vastint Latvia”. Lokālplānojuma izstrādātājs ir SIA “Grupa 93”.
Par "Vastint Latvia":
"Vastint Latvia" ir viens no vadošajiem nekustamo īpašumu attīstītājiem Latvijā, kas kopš 2003.gada pārvalda savu nekustamo īpašumu portfeli un attīsta jaunus biroju, viesnīcu un dzīvojamo ēku projektus. "Vastint Latvia" ir daļa no "Vastint Group" - starptautiska nekustamo īpašumu uzņēmuma ar vairāk nekā 30 gadu pieredzi Eiropā. "Vastint Latvia" projekti: "AC Hotel by Marriott Riga", biroju ēka "Zaļā 1" (pārdota Zviedru investīciju fondam Eastnine AB), dzīvojamais nams "FUTURIS" un daudzfunkcionāls Magdelēnas kvartāls (pirmā kārta) Rīgas vēsturiskajā centrā, kā arī biroju ēku komplekss "Business Garden Rīga" (pirmā kārta) un dzīvojamais projekts Lindenholma (pirmā kārta) uz Rīgas un Mārupes robežas. Paralēli turpinās lokālplānojuma publiskā apspriešana 19 ha plašam īpašumam "Ezerparks" Čiekurkalnā. Vairāk informācijas: www.vastint.eu/lv